Page suivante
Page précédente
Mareil-le-Guyon (78490)

Maison 7 pièce(s) 5 chambre(s) 157 m²

3
2227 m²
1
Réf 248
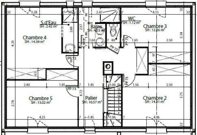
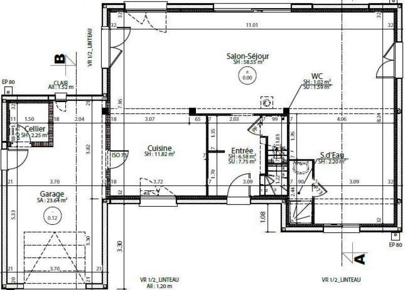
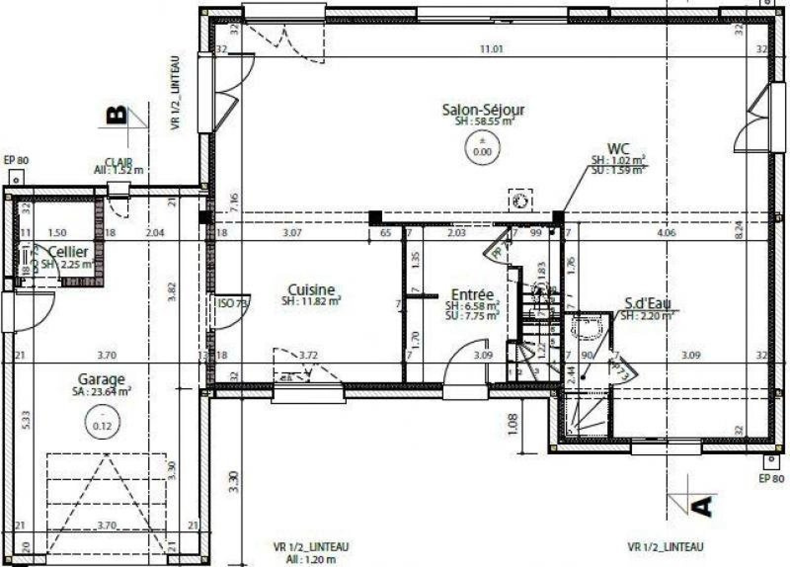
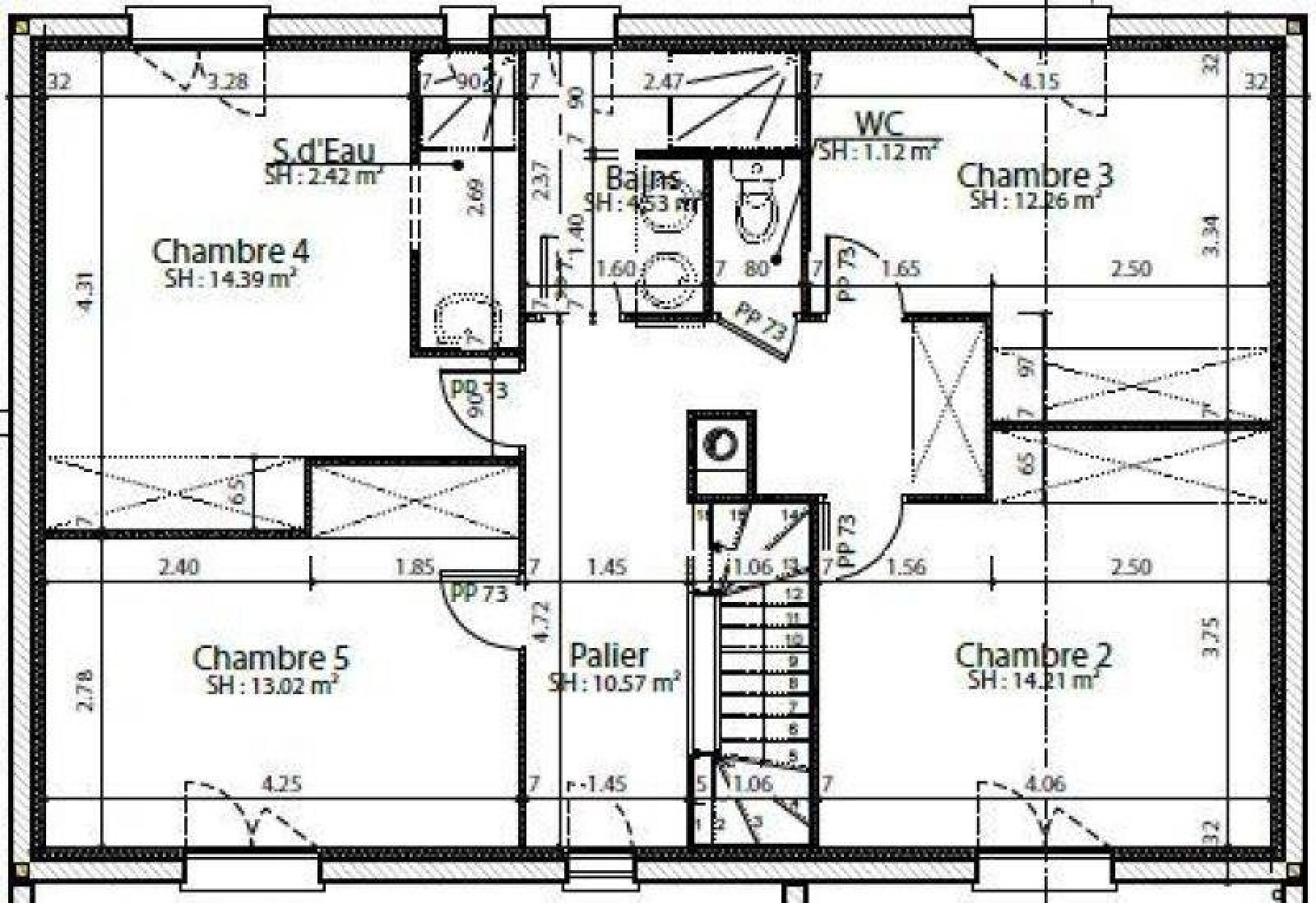
***VENDUE*** A 2 kms de Montfort l'Amaury, sur une parcelle de 2 227 m², maison neuve (2018) à finir d'aménager en apportant votre touche personnelle. Au rez-de-chaussée : entrée, salon-séjour d'environ 60 m², cuisine ouverte, WC, garage,cellier/buanderie. Possibilité de créer une chambre avec sa salle d'eau (17 m²), tout en préservant une pièce de vie de 45 m². A l'étage : palier (bureau), 4 chambres (dont une avec salle d'eau), salle d'eau et WC. Chauffage par pompe à chaleur air/eau, ballon thermodynamique, prises RJ45 Travaux d'aménagement (cuisine, salles d'eau) et de finition à prévoir (peinture, sols). Contact : Christian Branchard, agent commercial immatriculé au RSAC de Versailles sous le n°831 801 725. c.branchard@agencecap.fr 06 22 08 77 33

Bilan énergétique

Diagnostics énergetiques
A propos de ce bien Caractéristiques de ce bien
  • Surface 157 m²
  • terrain 2 227 m²
  • séjour 59 m²
  • 5 chambre(s)
  • 3 salle(s) d'eau
  • construit en 2018
  • Chauffage individuel : au sol (pompe à chaleur)
  • 1 garage(s)
  • 2 niveau(x)

Composition

Composition de ce bien

Rez-de-chaussée

  • chambre
  • toilettes
  • salle de douche
  • parking
  • garage
  • séjour 59 m²
  • terrain 2227 m²

Financier

Informations financières
Prix net vendeur 460 000 €

Simulation

Calcul des mensualités
* Champs obligatoires
AGENCE CAP Agence