Page suivante
Page précédente
Élancourt (78990)

Appartement 2 pièce(s) 1 chambre(s) 42.43 m²

1
Balcon
Ascenseur
Réf 370
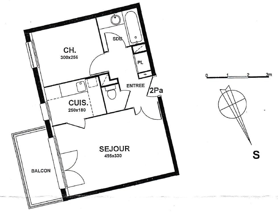
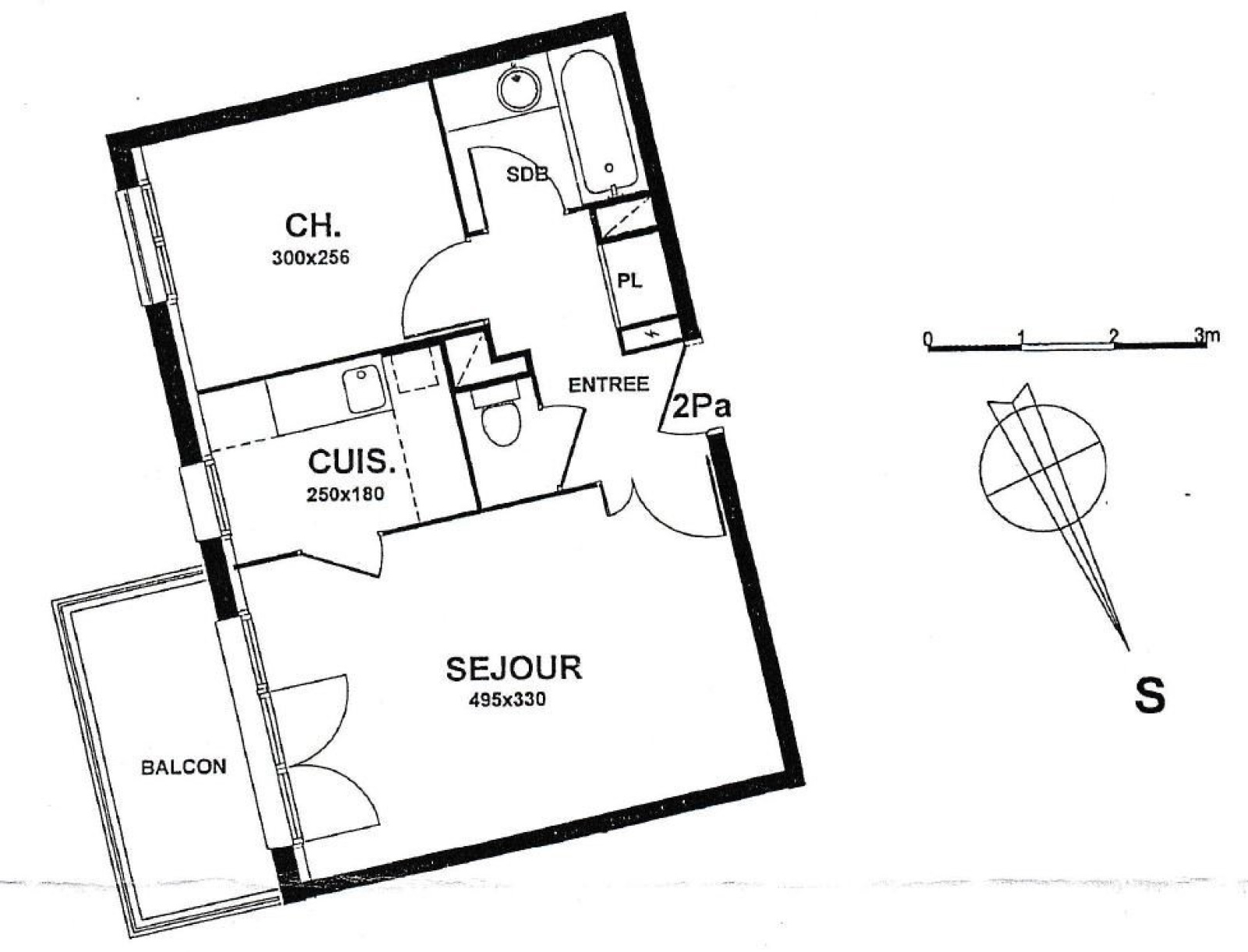
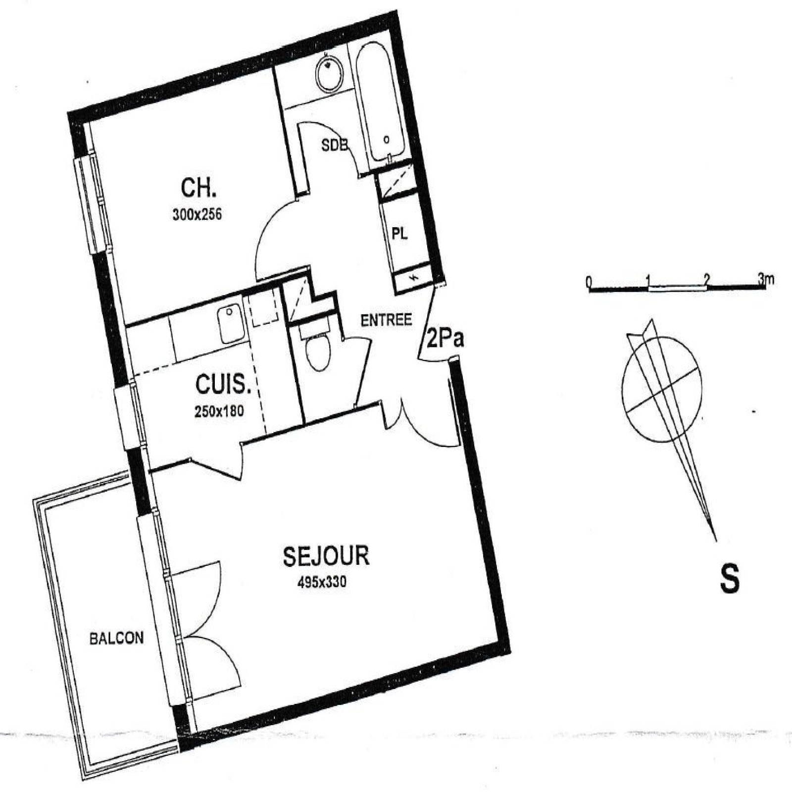
***VENDU*** Idéalement situé à Élancourt, dans le quartier de La Clef de Saint-Pierre, à proximité de toutes les commodités (école, collège, commerces à pied), appartement type F2 de 37 m². Il est situé au 4ème et dernier étage d'un immeuble récent (2003) doté d'un ascenseur. Il comprend une entrée avec placard, un séjour (16,37 m²) avec balcon (5,4 m², vue dégagée), une chambre, une cuisine aménagée, une salle de bains et un toilette. Une cave et un parking en sous-sol complètent ce bien. Il est équipé d'une chaudière gaz (eau+chauffage), de fenêtres double vitrage et de volets roulants. Logement faiblement énergivore (classé C). Charges de copropriété de 85 €/mois (1 024 €/an). Copropriété de 100 lots principaux. Contact : Christian Branchard, agent commercial immatriculé au RSAC de Versailles sous le n°831 801 725. c.branchard@agencecap.fr 06 22 08 77 33

Bilan énergétique

Diagnostics énergetiques
A propos de ce bien Caractéristiques de ce bien
  • Surface 42,43 m²
  • carrez 37 m²
  • séjour 16,37 m²
  • 1 chambre(s)
  • 1 salle(s) de bain
  • construit en 2003
  • Chauffage individuel : radiateur (gaz)
  • 4ème étage
  • ascenseur
  • vue Dégagée,null
  • balcon
  • interphone

Composition

Composition de ce bien

Rez-de-chaussée

  • chambre 7.67 m²
  • cuisine 4.5 m²
  • salle de bains 3.01 m²
  • toilettes 1.01 m²
  • balcon 5.42 m²
  • entrée 4.45 m²
  • séjour 16.37 m²

Info copro

Copropriété
  • Copropriété Oui
  • Lot n° 78
  • Nombre de lots 259

Financier

Informations financières
Prix net vendeur 147 500 €
Charges 256 €
Taxe foncière annuelle 738 €
Taxe d'habitation 639 €

Simulation

Calcul des mensualités
* Champs obligatoires
AGENCE CAP Agence