Page suivante
Page précédente
Plaisir (78370)

Appartement 3 pièce(s) 2 chambre(s) 71 m²

1
Balcon
Ascenseur
Réf 767
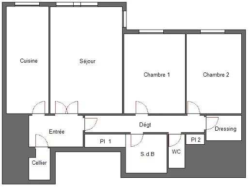
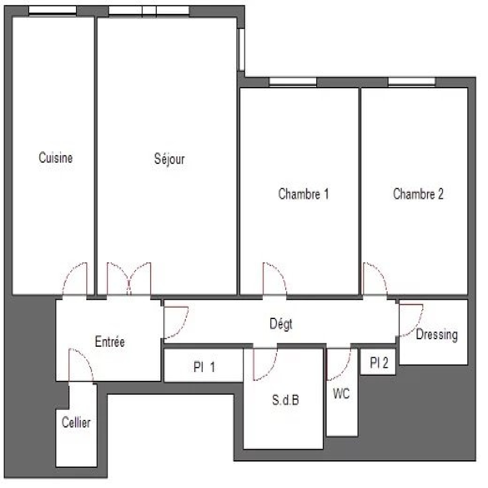
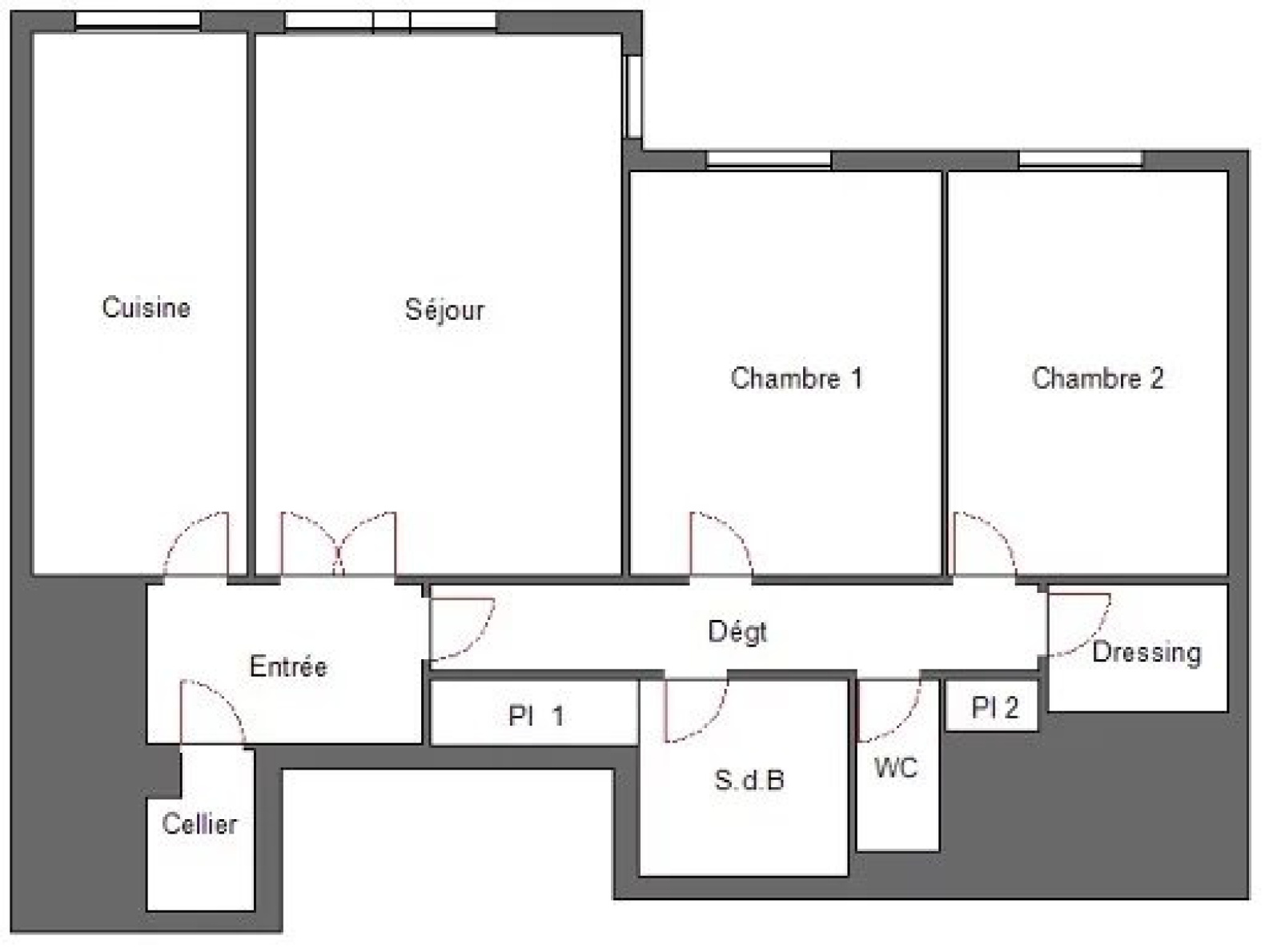
Situé au dernier étage avec ascenseur, cette appartement est composé ainsi : Une pièce de vie lumineuse donnant sur un beau balcon, une cuisine avec un cellier, une entrée, 2 belles chambres donnant également sur le balcon, une salle de bains et un wc séparé. Un box et une cave complètent ce bien. Résidence calme avec de nombreux espaces verts. Proche des écoles, commerces et commodités (gare de plaisir à 5 minutes à pieds = 26 minutes de Paris). Nombre de lots : 497 Charges prévisionnelles : 2700 € / an Pas de procédure en cours. Les charges comprennent le chauffage, l'eau chaude, l'eau froide, l'ascenseur, le gardien, l'entretien des espaces verts et des parties communes. Contact : Laurent Léon, agent commercial (EI) enregistré au RSAC de Versailles 751 000 282

Bilan énergétique

Diagnostics énergetiques
A propos de ce bien Caractéristiques de ce bien
  • Surface 71 m²
  • carrez 71 m²
  • séjour 18,51 m²
  • 2 chambre(s)
  • 1 salle(s) de bain
  • construit en 1976
  • Chauffage collectif : radiateur (gaz)
  • ascenseur
  • vue Dégagée,null
  • cave
  • balcon
  • interphone

Composition

Composition de ce bien

Rez-de-chaussée

  • séjour 18.51 m²
  • cuisine 10.92 m²
  • cellier 1.47 m²
  • chambre 11.7 m²
  • chambre 10.53 m²
  • salle de bains 3.86 m²
  • entrée 4.11 m²
  • toilettes 1.34 m²
  • dressing 2.19 m²
  • dégagement 4.99 m²
  • placard 1.3 m²
  • placard 0.45 m²
  • balcon
  • box
  • cave

Info copro

Copropriété
  • Copropriété Oui
  • Nombre de lots 985

Financier

Informations financières
Les honoraires d'agence seront intégralement à la charge du vendeur  
Taxe foncière annuelle 1 326 €

Simulation

Calcul des mensualités
* Champs obligatoires
AGENCE CAP Agence