Page suivante
Page précédente
Plaisir (78370)

Appartement 3 pièce(s) 2 chambre(s) 70.33 m²

1
Balcon
Réf 746
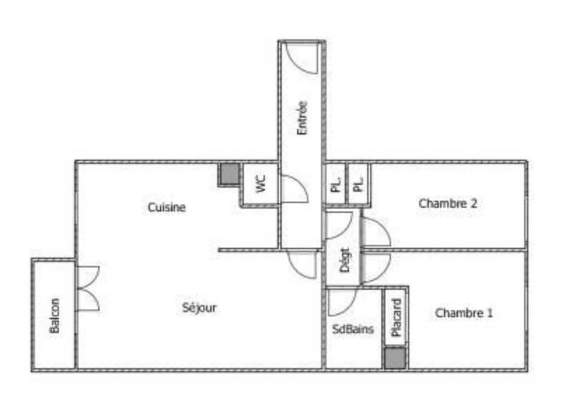
Situé dans le quartier de la Bretechelle et au 3 ème et dernier étage d?un petit immeuble ravalé en 2019, l'agence CaP vous propose un très bel appartement lumineux avec vue dégagée sur la forêt. Il est constitué de la sorte : Une entrée avec placard et WC qui dessert : - D?un côté, un espace jour de 32 m2 exposé Sud comprenant séjour / cuisine ouverte équipée et un balcon avec vue remarquable. - De l?autre, un espace nuit comprenant deux belles chambres exposées Nord avec placards intégrés, et une salle de bains. L?appartement est équipé de la fibre optique. Au sous-sol, une place de parking privative et une cave viennent compléter ce bien. L'arrêt de Bus est situé en bas de l'immeuble et dessert les gares de Plaisir-Les Clayes et Plaisir-Grignon en moins de 10 min. Les atouts : appartement très bien entretenu avec beaux volumes et très lumineux, faibles charges, excellent DPE, quartier calme avec accès rapide à la Forêt et aux parcs. A visiter de toute Urgence! DPE : consommation énergétique C (154) ; GES A (4). Montant estimé des dépenses annuelles d?énergie pour un usage standard : entre 660 et 940 euros. Prix moyens des énergies indexés sur l'année 2021 (abonnements compris) Les charges de copropriété s'élèvent à 360 euros par trimestres, la taxe foncières à 1225 euros / an et la copropriété compte 186 lots dont 74 principaux. Pas de procédure en cours. Contact : Alexandre Savoye au 06 67 45 93 94, enregistré au RSAC de Versailles 752 211 102, a.savoye@agencecap.fr

Bilan énergétique

Diagnostics énergetiques
A propos de ce bien Caractéristiques de ce bien
  • Surface 70,33 m²
  • carrez 67 m²
  • 2 chambre(s)
  • 1 salle(s) d'eau
  • construit en 1992
  • Chauffage individuel : radiateur (electrique)
  • exposition Sud
  • 3ème étage
  • vue Dégagée,Forêt
  • cave
  • balcon
  • interphone

Composition

Composition de ce bien

Rez-de-chaussée

  • salon 32 m²
  • chambre 11.5 m²
  • chambre 11 m²
  • salle de douche 3.3 m²
  • couloir 8 m²
  • toilettes 1 m²
  • balcon 3 m²
  • cave 2 m²
  • parking 13 m²

Info copro

Copropriété
  • Copropriété Oui
  • Nombre de lots 186

Financier

Informations financières
Les honoraires d'agence seront intégralement à la charge du vendeur  
Charges 120 €
Taxe foncière annuelle 1 225 €

Simulation

Calcul des mensualités
* Champs obligatoires
AGENCE CAP Agence