Page suivante
Page précédente
Plaisir (78370)

Maison 4 pièce(s) 80 m²

132 m²
Réf 743
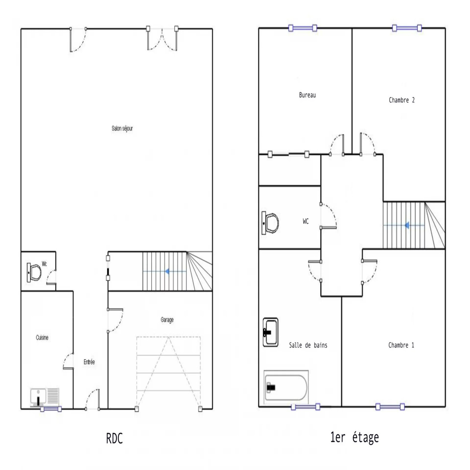
Située au c?ur d'un quartier familial et à deux pas des commerces et du centre commercial « mon grand Plaisir » cette jolie maison de ville vous séduira grâce à ses nombreux atouts. Au rez-de-chaussée, une entrée, une cuisine ouverte équipée, un séjour donnant sur un jardin avec terrasse en bois et un abri. Un garage est également accessible depuis l'intérieur. A l'étage, 3 belles chambres avec placards, une salle de bain et un wc séparé. Les atouts : Maison bien entretenue, à proximité des commodités. A l'extérieur, une borne de recharge pour voiture électrique est installée devant la maison. Accès à Paris Montparnasse via Versailles en 26 minutes depuis la gare de Plaisir Grignon. A visiter de toute urgence. DPE : consommation énergétique C (147) ; GES C (29). Montant estimé des dépenses annuelles d?énergie pour un usage standard : entre 910 et 1280 euros. Prix moyens des énergies indexés sur l'année 2021 (abonnements compris). Contact : Alexandre Savoye au 06 67 45 93 94, enregistré au RSAC de Versailles 752 211 102, a.savoye@agencecap.fr

Bilan énergétique

Diagnostics énergetiques
A propos de ce bien Caractéristiques de ce bien
  • Surface 80 m²
  • terrain 132 m²
  • construit en 1989
  • Chauffage autre : radiateur (gaz)
  • exposition Est-Ouest
  • vue Aperçu,Ville

Composition

Composition de ce bien

Rez-de-chaussée

  • terrain 132 m²
  • jardin 50 m²

Financier

Informations financières
Les honoraires d'agence seront intégralement à la charge du vendeur  
Taxe foncière annuelle 1 673 €

Simulation

Calcul des mensualités
* Champs obligatoires
AGENCE CAP Agence