Page suivante
Page précédente
Plaisir (78370)

Maison 5 pièce(s) 3 chambre(s) 104.89 m²

1
Réf 680
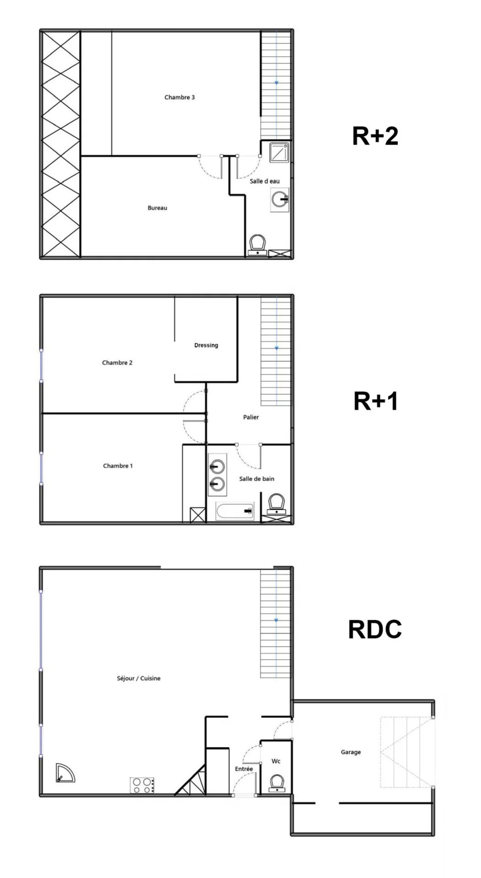
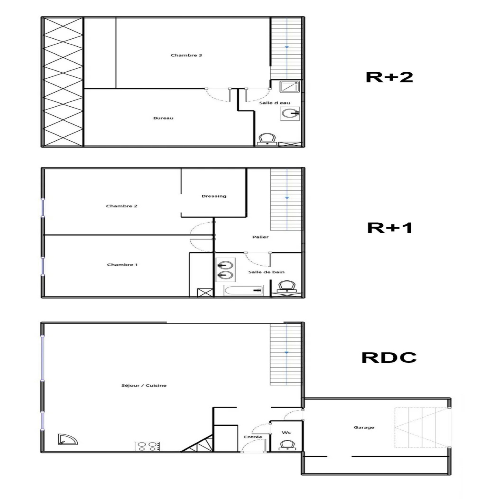
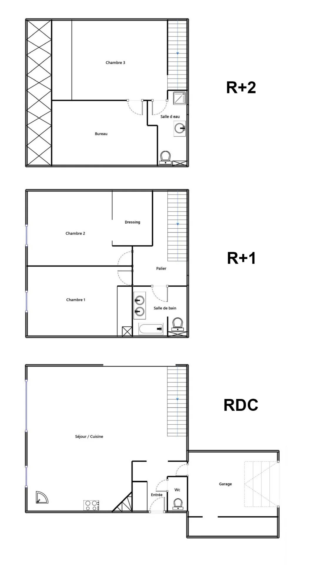
Dans un quartier recherché et familial, à deux pas des écoles, voici un très bel appartement en triplex type maison de ville de 104m² utiles (94 m² Carrez) avec jardin et terrasse se composant de la sorte: Au RDC, une entrée avec WC, un salon avec cuisine ouverte équipée donnant sur un jardin avec terrasse exposée SUD et un grand garage. Au 1er étage, un palier dessert deux belles chambres (dont une avec dressing) et une salle de bains avec WC. Au 2 ème étage, une chambre, un bureau, une salle de douches avec WC et un grenier de rangement. Gare de Plaisir Grignon à 10 minutes en bus, direction Paris Montparnasse en 26 minutes. La maison a été rénovée récemment, la chaudière changée en 2019 et une pompe à chaleur réversible a été installée en 2022. Pas de travaux à prévoir, à visiter de toute urgence! DPE : consommation énergétique C (124) ; GES B (9). Montant estimé des dépenses annuelles d?énergie pour un usage standard : entre 830 et 1180 euros. Prix moyens des énergies indexés sur l'année 2021 (abonnements compris) Les charges de copropriété s'élèvent à 74 euros par trimestres, la taxe foncières à 1764 euros / an et la copropriété compte 32 lots dont 14 principaux. Pas de procédure en cours. Honoraire d'agence de 3% inclus. Contact : Alexandre Savoye au 06 67 45 93 94, enregistré au RSAC de Versailles 752 211 102, a.savoye@agencecap

Bilan énergétique

Diagnostics énergetiques
A propos de ce bien Caractéristiques de ce bien
  • Surface 104,89 m²
  • carrez 94 m²
  • 3 chambre(s)
  • construit en 1992
  • Chauffage collectif : radiateur (gaz)
  • 1 garage(s)
  • exposition Sud
  • -1 niveau(x)
  • vue Aperçu,Forêt
  • terrasse

Composition

Composition de ce bien

Rez-de-chaussée

  • séjour/cuisine 31.81 m²
  • entrée 4.5 m²
  • toilettes 1.01 m²
  • palier 5.7 m²
  • salle de bains / toilettes 4.4 m²
  • chambre 11.41 m²
  • chambre 14.37 m²
  • chambre 9.17 m²
  • bureau 7.14 m²
  • salle de douche / toilettes 4.57 m²
  • garage 18.93 m²
  • terrasse 38.34 m²
  • jardin 15 m²

Info copro

Copropriété
  • Copropriété Oui
  • Lot n° 1
  • Nombre de lots 51

Financier

Informations financières
Prix net vendeur 320 388 €
Charges 74 €
Taxe foncière annuelle 1 764 €

Simulation

Calcul des mensualités
* Champs obligatoires
AGENCE CAP Agence