Page suivante
Page précédente
Saint-Germain-de-la-Grange (78640)

Maison 5 pièce(s) 4 chambre(s) 108 m²

1
Réf 813
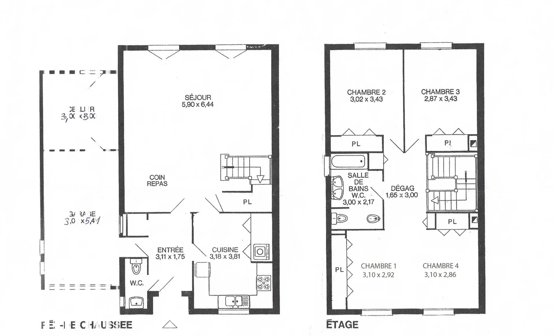
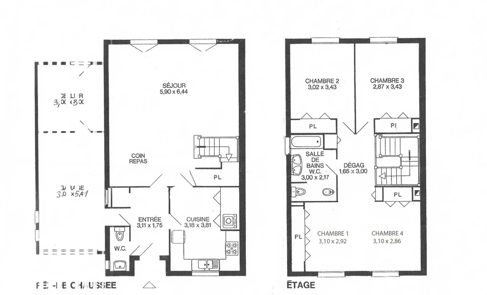
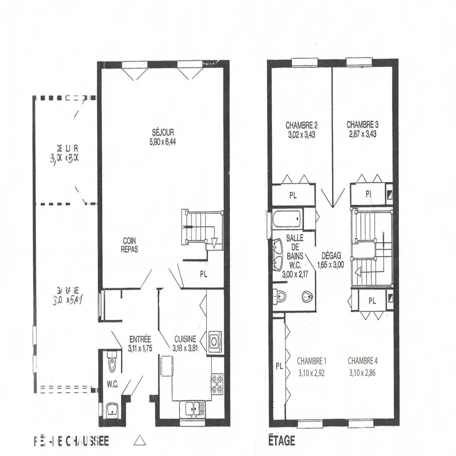
Implantée en impasse dans un quartier recherché de Saint-Germain-De-La-Grange, maison de cinq pièces parfaitement entretenue. Au rez-de-chaussée : entrée avec une penderie, toilettes avec un lave mains, grand séjour donnant accès à une terrasse orientée plein sud et cuisine contemporaine. A l'étage un palier avec deux placards dessert quatre chambres chacune équipée d'un placard et une salle de bains (baignoire douche et WC). Une buanderie et un garage complètent ce bien. Environnement privilégié, décoration contemporaine, nombreux rangements : il ne reste plus qu'à poser vos valises. Voirie en association syndicale libre, la charge annuelle est de 150 €. Terrain de tennis pour les résidents. Contact : Laurent Léon (EI), agent commercial enregistré au RSAC de Versailles 751 000 282. Tel : 06 75 72 34 77 l.leon@agencecap.fr.

Bilan énergétique

Diagnostics énergetiques
A propos de ce bien Caractéristiques de ce bien
  • Surface 108 m²
  • 4 chambre(s)
  • Chauffage individuel : radiateur (gaz)
  • 1 garage(s)
  • exposition Sud

Composition

Composition de ce bien

Rez-de-chaussée

  • séjour
  • cuisine
  • entrée
  • palier
  • chambre
  • chambre
  • chambre
  • chambre
  • salle de bains / toilettes
  • toilettes
  • buanderie
  • garage
  • placard
  • placard
  • jardin 410 m²

Financier

Informations financières
Les honoraires d'agence seront intégralement à la charge du vendeur  

Simulation

Calcul des mensualités
* Champs obligatoires
AGENCE CAP Agence