Page suivante
Page précédente
Les Clayes-sous-Bois (78340)

Maison 4 pièce(s) 3 chambre(s) 110 m²

1
1
395 m²
Réf 803
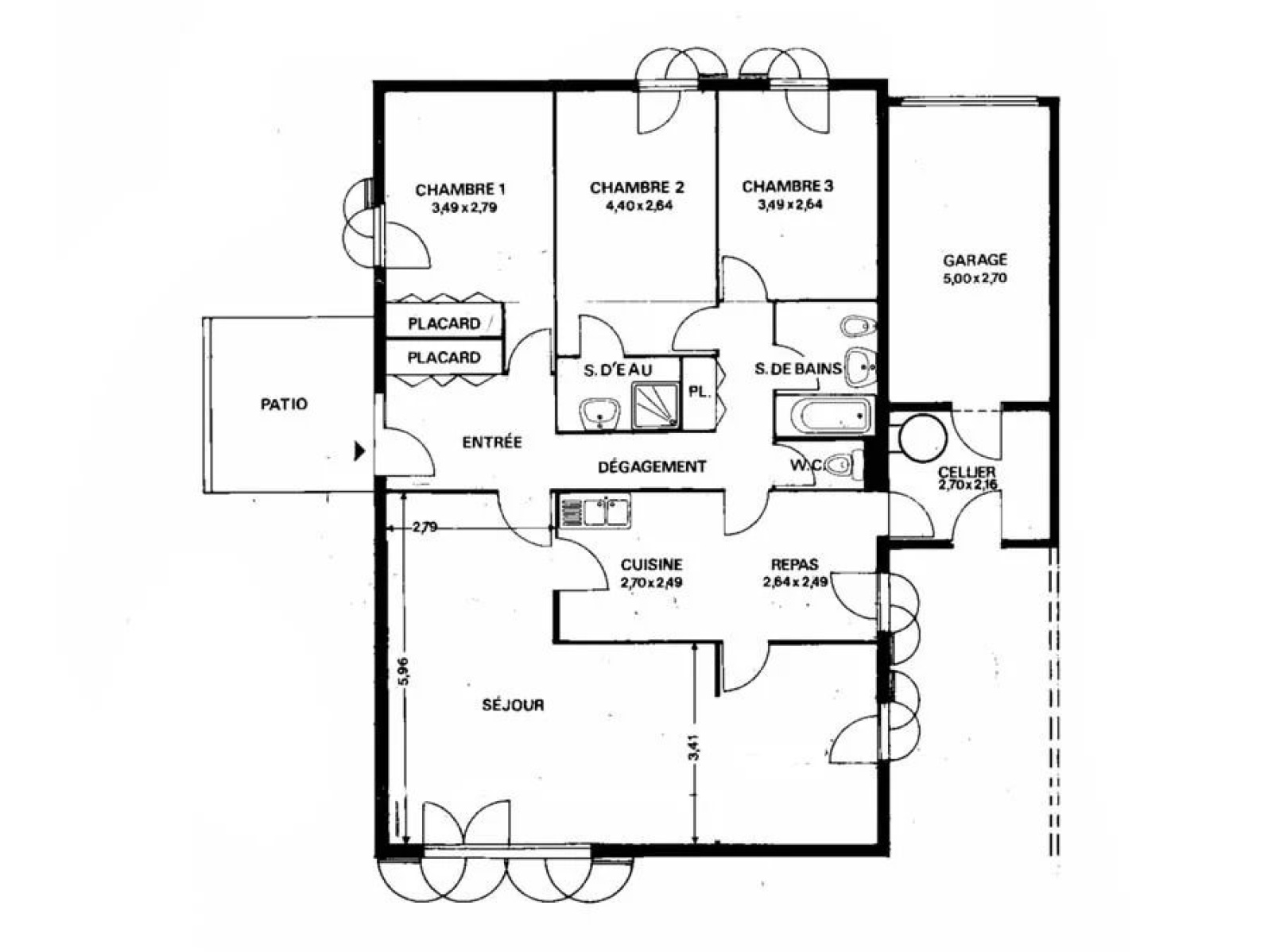
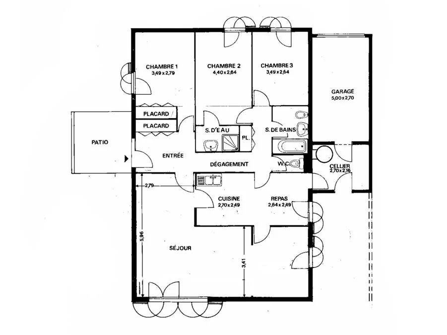
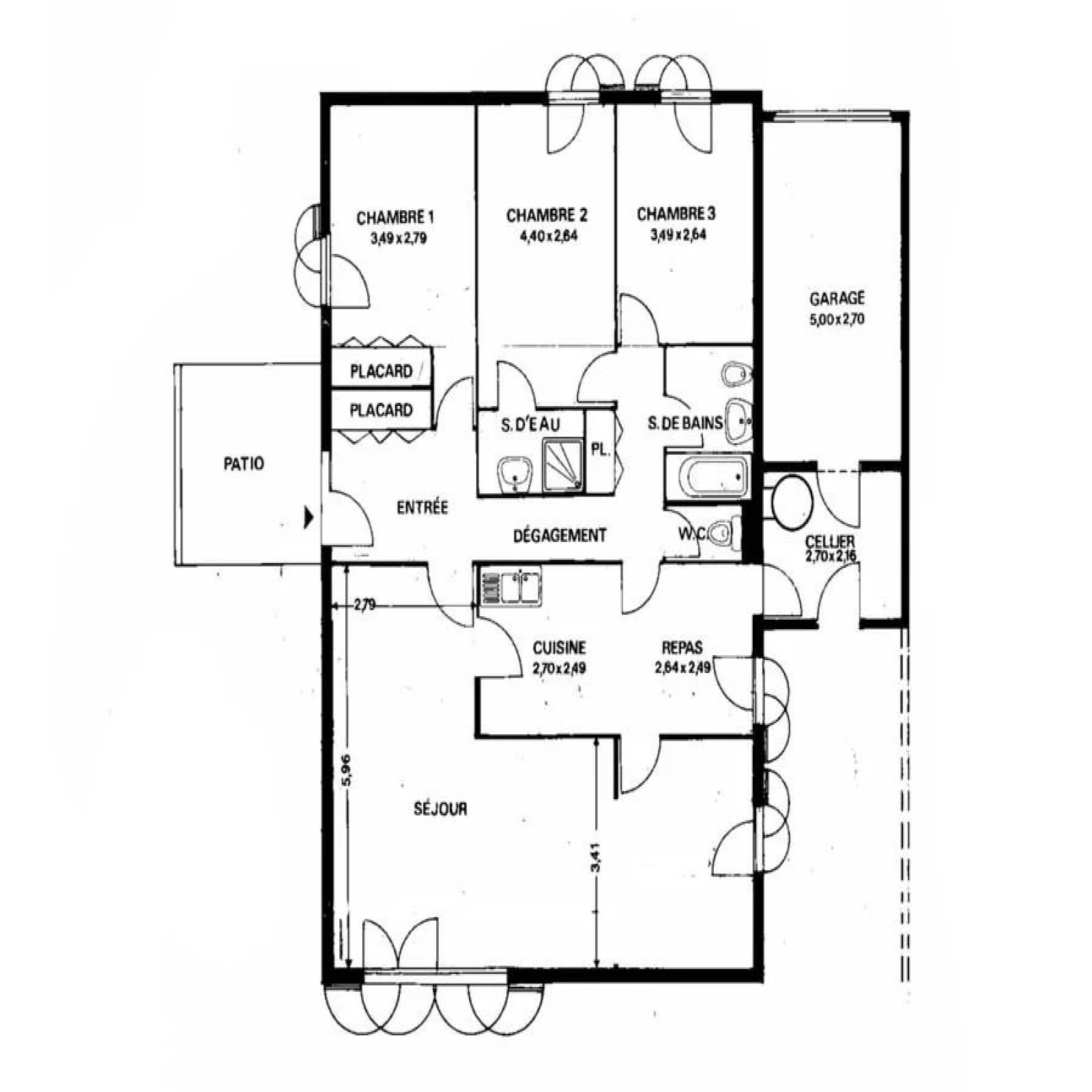
Cette maison de 3/4 chambres est idéalement située dans un secteur des Clayes-Sous-Bois où vous pourrez effectuer la plupart de vos déplacements à pied. De plain pied : une entrée vous mènera vers un séjour. une cuisine. trois chambres dont une avec sa salle de douche. une salle de bains commune et un toilette séparé. A l'étage une mezzanine mène à un bureau pouvant faire office de quatrième petite chambre. Un garage avec grenier complète ce bien. Un cadre de vie paisible sans vis et à vis à proximité de toutes les commodités. ASL composée de 164 lots. Charges trimestrielles de 84€. Pas de procédure en cours. Contact : Laurent Léon (EI). agent commercial enregistré au RSAC de Versailles 751 000 282. Tel : 06 75 72 34 77 l.leon@agencecap.fr

Bilan énergétique

Diagnostics énergetiques
A propos de ce bien Caractéristiques de ce bien
  • Surface 110 m²
  • terrain 395 m²
  • séjour 35 m²
  • 3 chambre(s)
  • 1 salle(s) de bain
  • 1 salle(s) d'eau
  • Chauffage individuel : convecteur (electrique)
  • 1 garage(s)

Composition

Composition de ce bien

Rez-de-chaussée

  • bureau 9 m²
  • séjour 35 m²
  • cuisine 13.3 m²
  • chambre 12 m²
  • chambre 11.5 m²
  • chambre 9.2 m²
  • salle de bains 3.75 m²
  • salle de douche 2.4 m²
  • toilettes 1.2 m²
  • entrée 5.45 m²
  • dégagement 5.3 m²
  • placard 1.85 m²
  • buanderie
  • garage
  • grenier
  • terrain 395 m²

Financier

Informations financières
Les honoraires d'agence seront intégralement à la charge du vendeur  

Simulation

Calcul des mensualités
* Champs obligatoires
AGENCE CAP Agence