Page suivante
Page précédente
Les Mesnuls (78490)

Maison 5 pièce(s) 4 chambre(s) 133 m²

1
596 m²
1
Réf 724
Cette maison ancienne (nécessitant des travaux) datant du début du 20ème siècle est implantée au calme et proche du centre des Mesnuls sur une belle parcelle de 596m². Elle se compose actuellement de deux pièces de vie avec cuisine, quatre chambres, deux salles de douche, un toilette séparé, un grand cellier, deux garages, un atelier, une cave et deux greniers. Les travaux nécessaires peuvent éventuellement s'accompagner d'une étude pour augmenter la surface habitable avec le bâtit existant (combles...). Joli jardin sans vis à vis. En résumé : Approximativement 92m² habitables, 34m² de garages, 8m² d'atelier, une cave de 10m² au sol et 60m² de surface au sol dans les combles. Montant estimé des dépenses annuelles d?énergie pour un usage standard : entre 4110 et 5600€. Prix moyens des énergies indexés au 1er janvier 2021 (abonnements compris). 247 200,00€ Honoraires TTC inclus à la charge de l?acquéreur : Prix hors honoraires : 240 000,00€ Honoraires d'agence charge acquéreurs : 7 200,00€ (3%). Contact : Laurent Léon, agent commercial enregistré au RSAC de Versailles 751 000 282, Tel : 06 75 72 34 77 l.leon@agencecap.fr

Bilan énergétique

Diagnostics énergetiques
A propos de ce bien Caractéristiques de ce bien
  • Surface 133 m²
  • terrain 596 m²
  • 4 chambre(s)
  • 1 salle(s) d'eau
  • Chauffage individuel : convecteur (electrique)
  • 1 garage(s)
  • vue Dégagée,Verdure,Campagne,Jardin

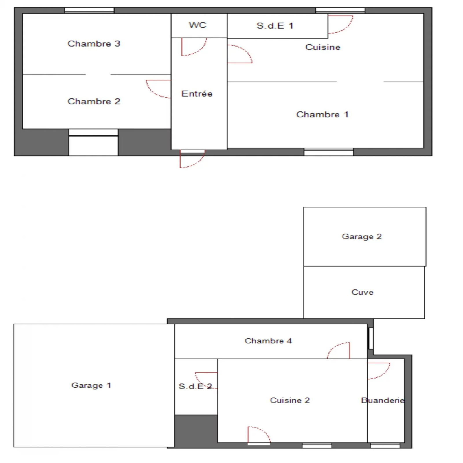
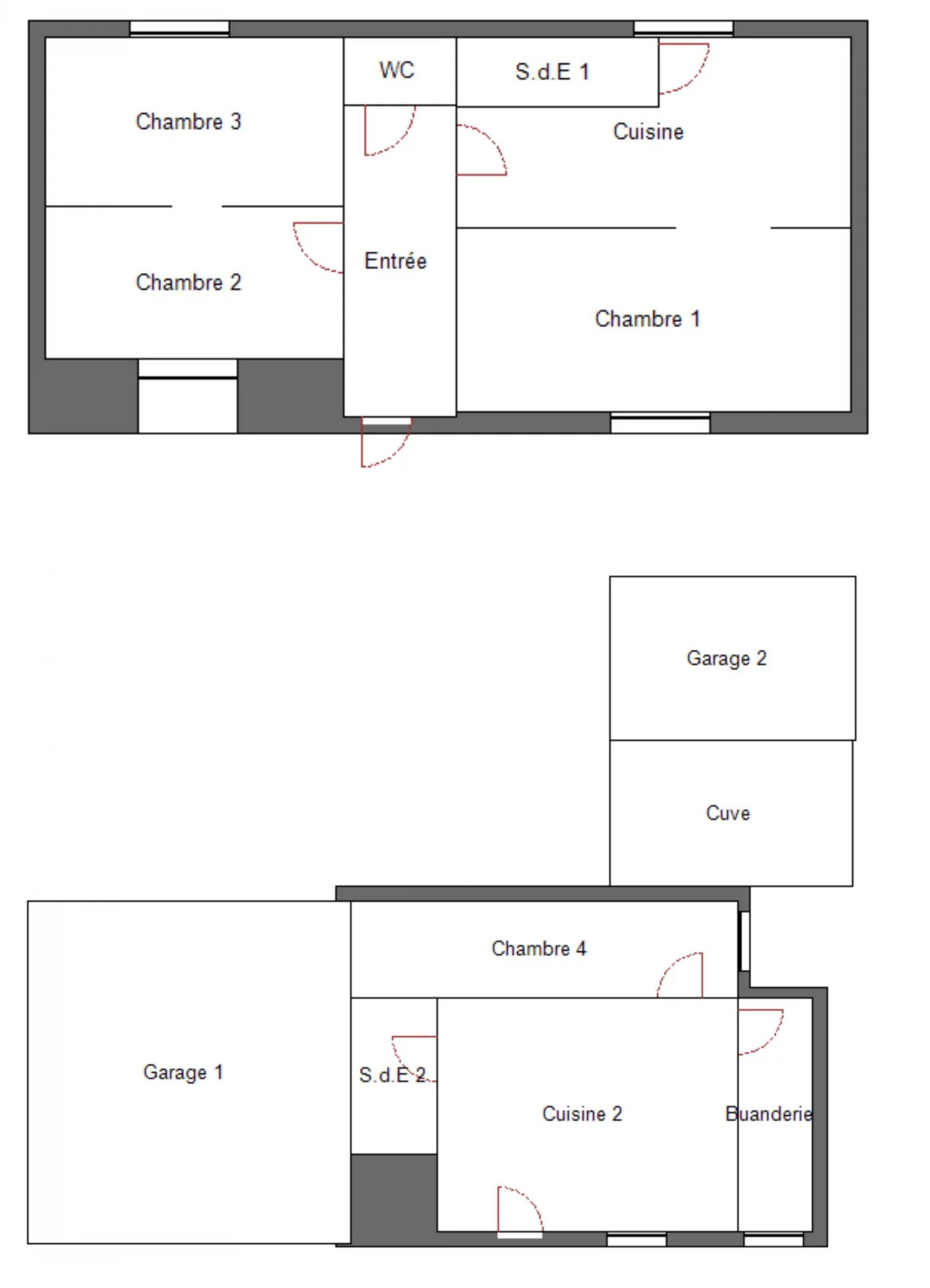
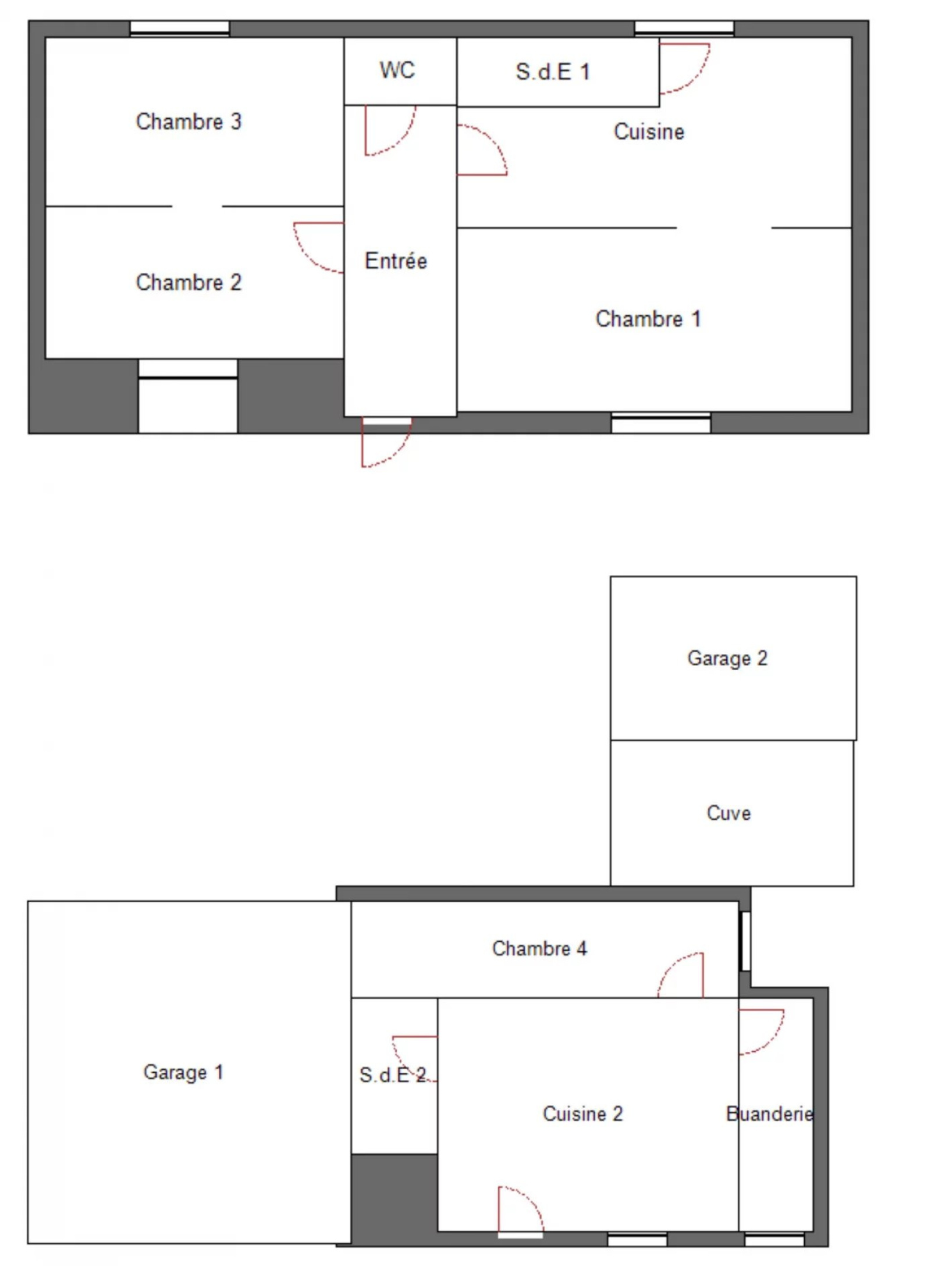
Composition

Composition de ce bien

Rez-de-chaussée

  • garage 21.5 m²
  • séjour/cuisine 20.5 m²
  • buanderie 8 m²
  • chambre 13 m²
  • chambre 12 m²
  • chambre 11 m²
  • chambre 9 m²
  • salle de douche / toilettes 2 m²
  • salle de douche 2 m²
  • toilettes 1 m²
  • séjour/cuisine 15.5 m²
  • palier 4 m²
  • garage 13 m²
  • atelier 8.5 m²
  • grange 7 m²
  • grenier 50 m²
  • grenier 10 m²
  • cave à vin 10 m²
  • terrain 596 m²
  • jardin 265 m²
  • cour 70 m²

Financier

Informations financières
Prix net vendeur 240 000 €

Simulation

Calcul des mensualités
* Champs obligatoires
AGENCE CAP Agence