Page suivante
Page précédente
Béhoust (78910)

Maison 6 pièce(s) 4 chambre(s) 162.76 m²

1
1
1
Réf 698
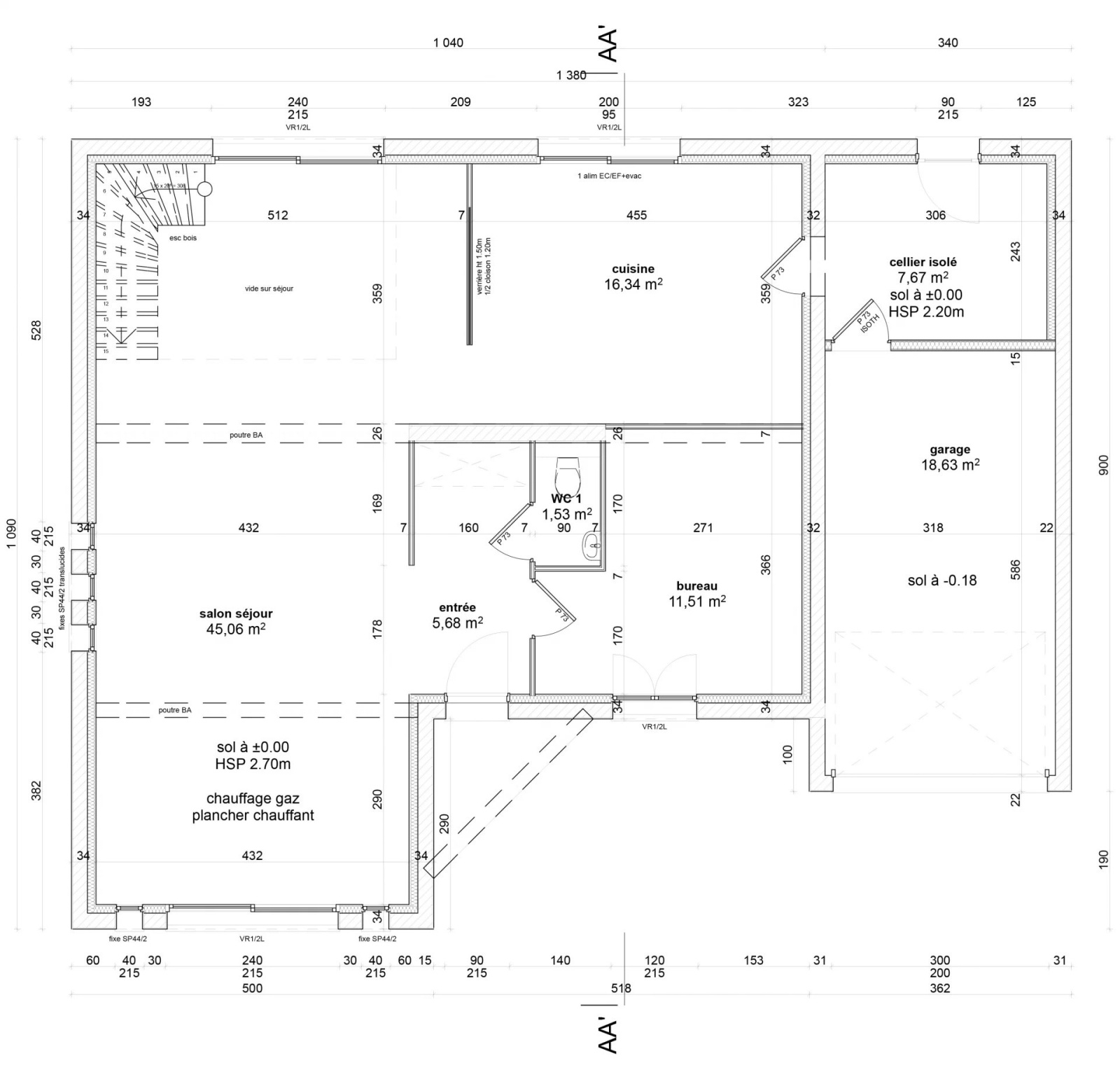
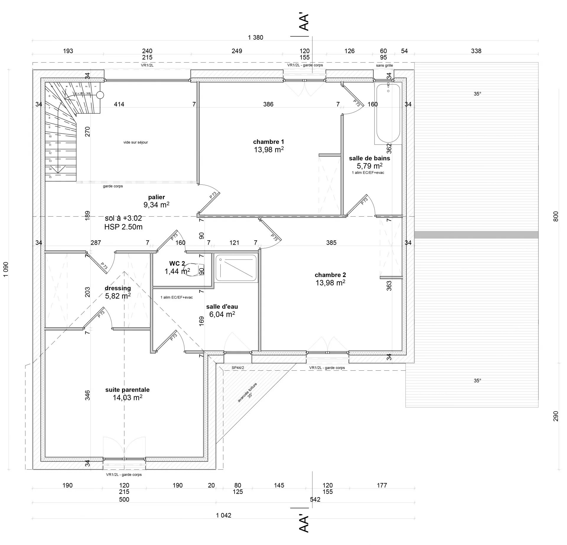
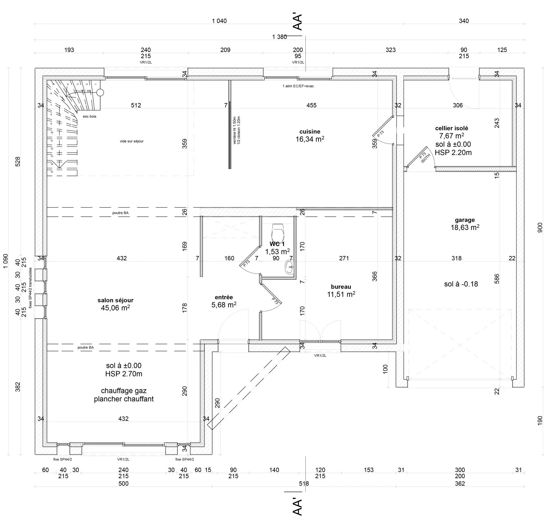
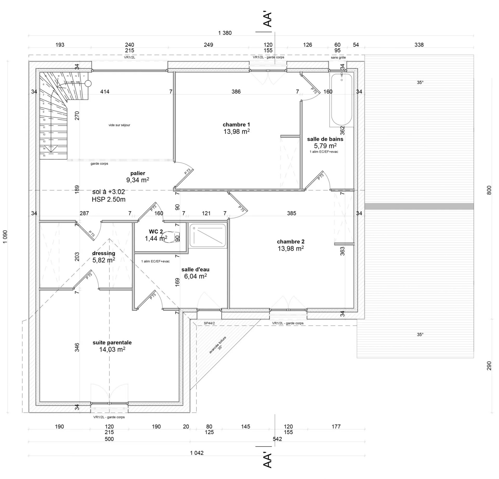
Maison contemporaine de 2021 faiblement énergivore A Béhoust, au calme, maison moderne et fonctionnelle de 2021 proche de toutes les commodités, avec écoles sur place. Au rez-de-chaussée, cette maison propose une entrée avec vestiaire, un salon-séjour de 45 m², une cuisine équipée (électroménager complet y compris cave de service) semi ouverte, un cellier (chaufferie/buanderie) avec accès au garage, une chambre (ou bureau), des toilettes avec lave-mains. A l'étage, un grand palier dessert une suite parentale de 26 m² (chambre/dressing/salle d'eau), 2 autres chambres de 14 m² avec accès direct à la salle de bains, des toilettes. Ce bien est faiblement énergivore classé B (consommation énergétique 50 ; GES 6). Montant estimé des dépenses annuelles d?énergie pour un usage standard : entre 725 et 981 euros. Prix moyens des énergies indexés sur l'année 2021 (abonnements compris). L'équipement est complet et de qualité : chauffage au sol au rdc, chauffe-eau thermodynamique alimenté par une PAC, menuiseries double vitrage en aluminium, volets roulants électriques, VMC hygroréglable, adoucisseur d'eau, portail et porte de garage motorisés, vidéophone, borne de recharge VE. Terrain de 806 m² accueillant une terrasse de 40 m² et des emplacements de stationnement. Contact : Christian Branchard (EI) 06 22 08 77 33, agent commercial immatriculé au RSAC de Versailles sous le n°831 801 725. c.branchard@agencecap.fr

Bilan énergétique

Diagnostics énergetiques
A propos de ce bien Caractéristiques de ce bien
  • Surface 162,76 m²
  • séjour 45,06 m²
  • 4 chambre(s)
  • 1 salle(s) de bain
  • 1 salle(s) d'eau
  • construit en 2021
  • Chauffage individuel : au sol (gaz)
  • 1 garage(s)
  • exposition Sud
  • 2 niveau(x)
  • vue Aperçu,Village

Composition

Composition de ce bien

Rez-de-chaussée

  • entrée 5.68 m²
  • séjour 45.06 m²
  • cuisine équipée 16.34 m²
  • cellier 7.67 m²
  • chambre 11.51 m²
  • toilettes 1.53 m²
  • garage 18.63 m²

Etage 1

  • palier 9.34 m²
  • chambre 14.03 m²
  • salle de douche 6.04 m²
  • dressing 5.82 m²
  • chambre 13.98 m²
  • chambre 13.98 m²
  • salle de bains 5.79 m²
  • toilettes 1.44 m²

Financier

Informations financières
Prix net vendeur 568 000 €

Simulation

Calcul des mensualités
* Champs obligatoires
AGENCE CAP Agence